#502 1-6-3 nihonbashi kayabacho,
chuo-ku, tokyo 103-0025

+ 81 3 6264 9980

info@tezzonishizawa.com

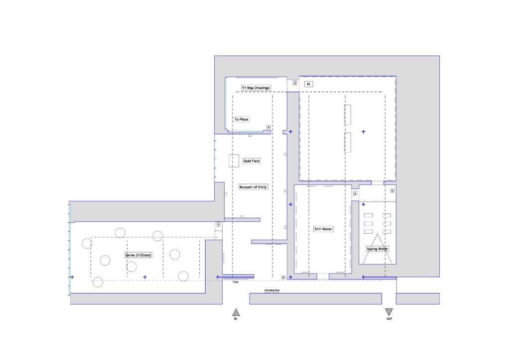
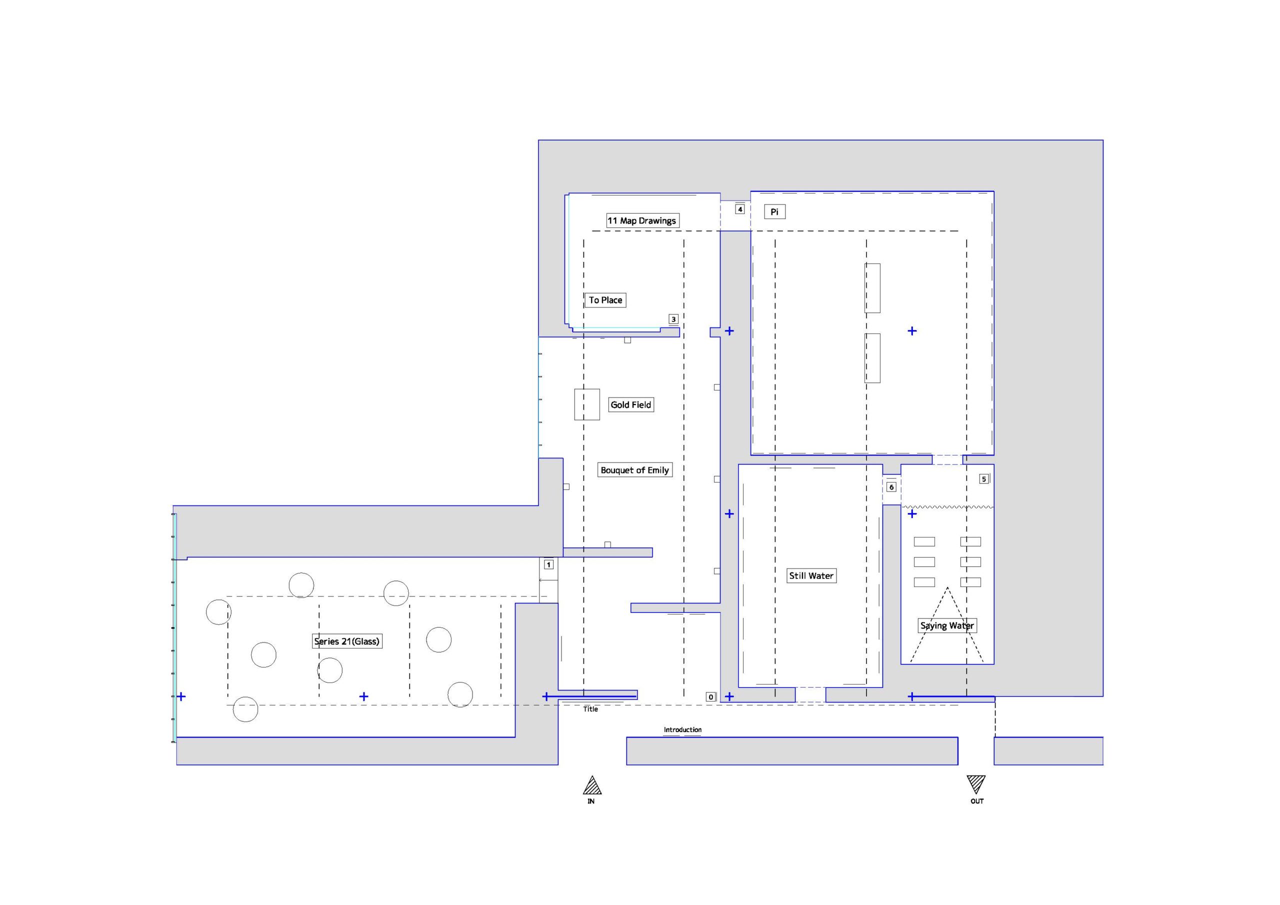
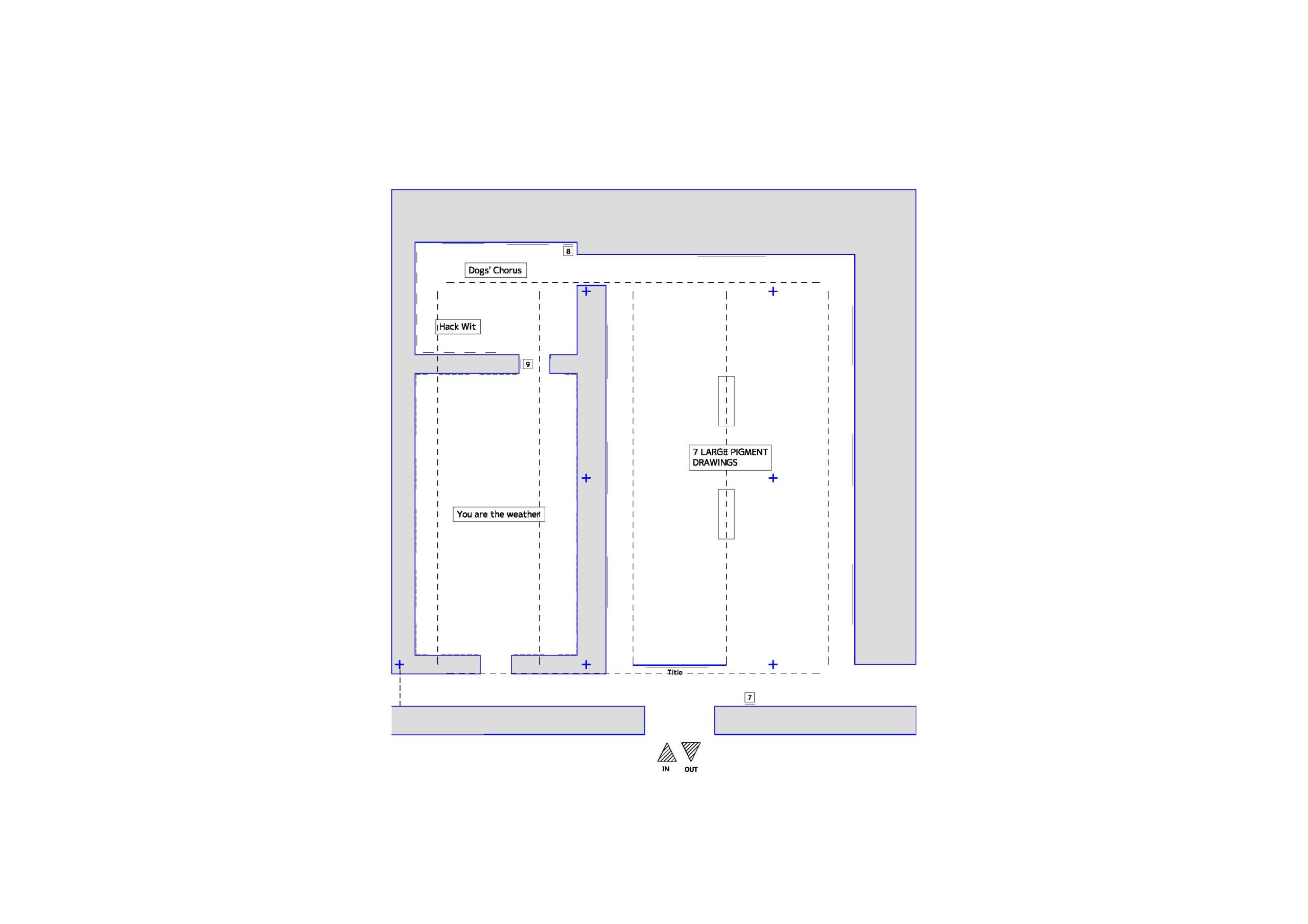
Roni Horn : When You See Your Reflection in Water, Do You Recognize the Water in You?
ロニ・ホーン:水の中にあなたを見るとき、あなたの中に水を感じる?

  • Date

    2021.09
  • Usage

    exhibition
  • Location

    POLA Museum of Art, Hakone, Kanagawa
  • Client

    POLA Museum of Art
  • Site area

    1,220sqm
  • Detail design period

    2021.032021.09
  • Collaboration

    • Lighting consultant

      Samsara
    • Construction

      • TOKYO STUDIO CO., LTD.
      • HIGURE 17-15 cas
  • Publication and Link

Photo.

  • 1–12Yurika Kono
  • 13,14Tezzo Nishizawa Architects